tcpTUNNEL Replanteo y toma de datos en túneles Aplitop

TcpTunnel

tcpTUNNEL Replanteo y toma de datos en túneles Aplitop

Pide presupuesto

Control de obras en túneles con estación total

TcpTunnel: solución de software para topografía y control de túneles

Esta aplicación, instalada en un dispositivo móvil, facilita al usuario las opciones más comunes para el replanteo y la toma de datos de túneles con estaciones totales motorizadas y convencionales.

El programa tiene el control absoluto sobre la estación total, incluyendo el compensador, el puntero láser, la medición con o sin prisma, en modo fino o grueso, y el estado de la batería, que son monitorizados continuamente.

Características tcpTUNNEL

icon

Análisis de Puntos

Suministrando unas coordenadas el programa informa del PK y el desplazamiento

icon

Memoria interna

Las observaciones del túnel se almacenan en la memoria del dispositivo y ser enviados al PC

icon

Gestión de Ficheros

La aplicación trabaja con ficheros ASCII en formato compatible con TCP

ANCHOR:

Características

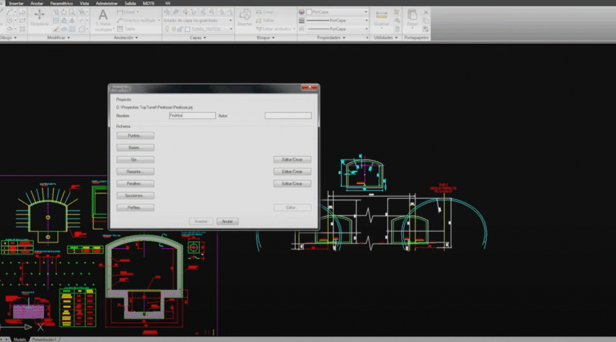
Definición del Proyecto

Cada proyecto se define mediante el eje en planta y alzado, los peraltes y la sección del túnel

Se soportan secciones simples y complejas, abiertas o cerradas, y pueden ser definidas mediante parámetros, coordenadas o puntos tomados con la estación total. También pueden ser convertidas de un dibujo CAD con TcpTunnel CAD.
Independientemente del tipo seleccionado deben especificarse las distancias que relacionan el eje en planta y alzado con la clave y el centro de la sección. Pueden asignarse secciones diferentes a lo largo del eje, mediante intervalos de puntos kilométricos.
También se indican los criterios de aplicación de los peraltes, pudiendo mantener fija la distancia de la clave a la rasante o la rodadura, o bien basculando la sección según los valores. Opcionalmente se puede indicar un espesor de firme.

Definición del proyecto tcptunnel

Estacionamiento y Orientación

estacionamiento angular, por coordenadas o intersección inversa

Como paso previo a la toma de datos y replanteo, debe orientarse la estación por uno de los métodos que se ofrecen: estacionamiento angular, por coordenadas o intersección inversa. Esta última se calcula por mínimos cuadrados con generación de informes. Se puede trabajar en coordenadas locales o proyectadas en UTM. El programa recuerda también los datos del último estacionamiento.

Estacionamiento y Orientación tcpTUNNEL

Toma de Datos

La toma automática de perfiles se realiza en los PKs teóricos establecidos y con el intervalo especificado por el usuario.

Para definir los puntos a medir de cada sección se dispone de tres métodos:

  • Incremento de ángulo
  • Incremento de longitud desarrollada del arco
  • Nivel, definido como diferencia de cota con respecto a la clave

También pueden tomarse o no la clave, los puntos singulares o la rodadura, y definir zonas de exclusión para ignorar tuberías de ventilación y otras zonas que no son de interés para la medición.

El proceso de toma de datos muestra para cada punto leído el PK y la diferencia respecto a la sección teórica.
La opción de lectura de puntos permite medir y almacenar coordenadas de puntos individuales, que podrán ser comparados posteriormente.
Otra característica importante de TcpTunnel es la posibilidad de escanear puntos de un segmento del túnel (solo en estaciones totales que disponen del modo de lectura ultrarápida). Definiendo una ventana de escaneo se pueden obtener miles de puntos de forma automática, que son empleados posteriormente en el cálculo y dibujo de perfiles.

El programa permite medir y almacenar observaciones a puntos cualesquiera de la sección del túnel. Posteriormente se puede realizar una comprobación de puntos de control, orientando automáticamente la estación, obteniendo el análisis de éste respecto al sistema de referencia, e informando de la desviación con respecto al punto teórico.
También se pueden comprobar puntos concretos de un perfil en un PK determinado. Si la estación total soporta el modo tracking, permite realizar un análisis continuo de los puntos leídos.

04 TcpTunnel-Top View-D_g

Replanteo

Localización por coordenadas o selección

Replanteo de Puntos

El programa permite replantear uno o más puntos del fichero, indicando su número, coordenadas o seleccionándolos gráficamente.

Replanteo de Frente

La estación total lee un punto situado en el frente de excavación del túnel indicando el lado y nivel deseado, analiza las coordenadas para deducir el PK y busca la proyección del nivel sobre el frente, hasta que la distancia 3D entre los puntos teórico y medido sea menor a la tolerancia definida, informando del resultado obtenido.

Replanteo de Bulones

Esta característica facilita la colocación de bulones para sostenimiento de la roca o el hormigón, orientando al usuario para la correcta situación en el PK deseado y además perpendicular a la sección

Replanteo de Rodadura

El programa solicita el PK, el desplazamiento al eje y el espesor a aplicar sobre la rasante, y mediante un proceso iterativo sitúa en el punto kilométrico exacto e informa de la diferencia de cota con respecto al punto teórico.

01 TcpTunnel-Main menu-D_g

Cálculo de Áreas

Comparación de Secciones

La aplicación permite comparar gráficamente las secciones teóricas y medidas a lo largo del eje de proyecto. Para ello se deben especificar los ficheros de puntos grabados en la toma de datos y establecer los valores del PK inicial y final, el intervalo de PK y la franja de regresión.

En pantalla se muestran, en diferentes colores, las zonas de infra y sobreexcavación, junto con sus valores numéricos calculados para cada perfil. Con estaciones totales motorizadas, también se ofrece la posibilidad de mover automáticamente el instrumento a cualquiera de los puntos que forman el perfil

Replanteo tcp TUNNEL

Utilidades

Obtener PK y Desplazamiento

Puntos sobre Eje

Suministrando un PK y un desplazamiento al eje, se indican en pantalla las coordenadas X, Y, el radio y el azimut en ese punto, además de la cota de rasante correspondiente al PK introducido.

Análisis de Puntos

Suministrando unas coordenadas el programa informa del PK y el desplazamiento correspondiente a este punto. También puede leerse un punto con la estación total para obtener el mismo resultado.

Distancia entre Puntos

Suministrando 2 puntos, el programa muestra la distancia, el azimut, la pendiente y las diferencias en X, Y, Z.

Área entre puntos

A partir de una secuencia de puntos se muestra la superficie y el perímetro que delimitan así como un gráfico de éste último.

Configuración

Este menú permite establecer las unidades de medida de ángulos, los parámetros de comunicación y modo de funcionamiento de la estación total, las tolerancias del replanteo, etc.

02 TcpTunnel-Setting out cross sections-D_g

Gestión de Ficheros

Conectividad y Transferencia

La aplicación trabaja con ficheros ASCII en formato compatible con TCP – Modelo Digital del Terreno, si bien se incluye un programa para PC que facilita la conversión de ficheros de los formatos más habituales en el mercado. Todos los datos entre el PC y el dispositivo móvil se transmiten de forma muy sencilla usando Microsoft ActiveSync/Windows Mobile Device Center.
Cada proyecto puede contener archivos de bases, puntos, ejes en planta y alzado, peraltes y secciones de túnel, permitiendo al usuario editar y añadir nueva información, así como dibujarla en pantalla.

Conectividad y transferencia tcpTUNNEL
ANCHOR:

Licencias

Modelos de suscripción para tcpTUNNEL

Característica Licencia DEMO Licencia 365 (Anual) Licencia Final (Permanente)
Modelo de Coste Gratuito. Pago recurrente anual (suscripción). Pago único inicial.
Duración del Uso 30 días. Anual, activa mientras la suscripción se mantenga. Perpetua para la versión adquirida.
Funcionalidad Acceso completo a todas las herramientas del software. Acceso completo y continuo a todas las funciones. Acceso completo y perpetuo a las funciones de la versión comprada.
Actualizaciones No aplica. Incluidas durante todo el periodo de suscripción. Requiere un contrato de mantenimiento activo o la compra de una actualización.
Soporte Técnico Limitado o nulo. Soporte técnico prioritario incluido (web, email, remoto). Incluido con un contrato de mantenimiento opcional.
Mantenimiento No aplica. Incluido en la cuota anual. Opcional y de pago anual tras el primer año para recibir soporte y actualizaciones.
Ideal Para Evaluar el software en campo con los equipos propios. Usuarios y empresas que prefieren un coste operativo predecible y acceso a lo último. Empresas que prefieren hacer una inversión única y ser propietarias de la licencia.
Activación Automática al iniciar el programa por primera vez. Requiere un código de activación de 16 caracteres. Requiere un código de activación de 20 caracteres.

Aplicaciones y software aplitop

SOFTWARE DE AUSCULTACIÓN

tcpTUNNEL Replanteo y toma de datos en túneles Aplitop

Aplicación para dispositivos móviles que permite el replanteo y toma de datos con estaciones totales

tcpTUNNEL ACRE

tcpTUNNEL CAD

Software para el análisis de perfiles y cálculo de volúmenes en túneles

tcpTUNNEL CAD ACRE
SOFTWARE DE TOPOGRAFÍA

tcpTUNNEL Scan para Topcon

Control de obras de túneles en tiempo real con estaciones totales robóticas de Topcon

tcpTUNNEL Scan para Topcon
SOFTWARE REALITY CAPTURE

tcpScancyr. Secciones de túneles a partir de escaneos 3D

Genera secciones transversales de túneles para carreteras y ferrocarriles a partir de escáner 3D

tcpScancyr
ANCHOR:

Especificaciones

Especificaciones técnicas tcpTUNNEL

Tabla de características

Dispositivos Soportados

Dispositivos móviles con procesador ARM y sistema operativo Microsoft Windows CE 4+, Windows Mobile 4.2+, Windows Embbeded Handheld 6.5 o Windows Embedded Compact 7.

Estaciones Totales Soportadas

Leica

  • T1000
  • TC303
  • TC700
  • TC800
  • TC1000
  • TC1100

Se requiere licencia Leica GeoCOM

  • TM30
  • TPS1200
  • TS11
  • TS15
  • TS30
  • MS50
ANCHOR:

FAQ

Respuestas a preguntas frecuentes (FAQ)

sobre tcpTUNNEL

¿Qué es exactamente TCP-TUNNEL y para qué se utiliza?
¿En qué dispositivos funciona el software?
¿Qué formato de ficheros utiliza? ¿Necesito algún conversor?
¿Cómo transfiero los datos de mi proyecto entre la controladora y el PC?
¿Puedo comprobar si la excavación es correcta mientras tomo los datos?
¿Qué opciones de replanteo ofrece el programa?
¿Es posible medir sin necesidad de usar un prisma?
¿Qué tipo de información puedo gestionar en un proyecto?
Además del replanteo y la toma de datos, ¿incluye otras herramientas?
Este sitio web utiliza cookies
Utilizamos cookies propias y de terceros para analizar nuestros servicios y mostrarte publicidad relacionada con tus preferencias en base a un perfil elaborado a partir de tus hábitos de navegación (por ejemplo, páginas visitadas).
Aceptar todas
Rechazar todas
Mostrar detalles